Loading...

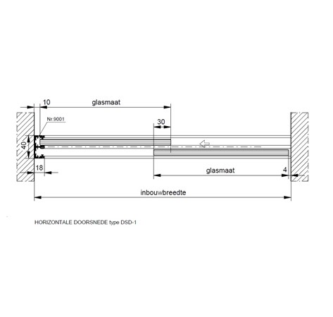
Total Glas douchewanden zijn er in verschillende uitvoeringen, onderstaande weergave is van type DSD-1.

  • 8 mm blank voorgespannen floatglas
  • kogelgelagerde loopwagens
  • gat Ø 30 mm
  • hangrails met railstoppers
  • geleidingsprofielen (onder- en aan zijkant)
  • Maximaal deurgewicht: 120 kg
  • Maximale deurbreedte: 1200 mm
  • Glasdikte: 8 mm en 10 mm

Bekijk alle varianten en technische details in de documentatie.

DSD-1
Douchedeur bestaande uit 1 schuifruit en 1 vaste ruit
DSD-11
Douchecabine bestaande uit 2 schuifruiten en 2 vaste ruiten

Mview+ denkt graag met u mee. Heeft u vragen over de vele mogelijkheden van de Total Glas douchewanden of wilt u advies over de mogelijkheden voor uw project? Neem dan contact met ons op. Wij helpen u graag verder.