Totalglas puien en deuren Glazen deur met Metinox Design beslag
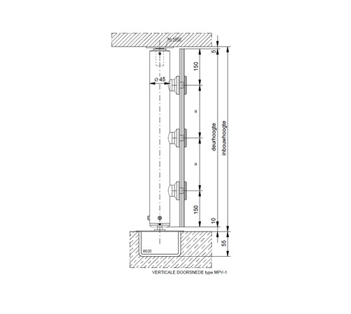
MPV
TOTAL GLAS hardglazen enkelwerkende deur met doorlopend Metinox® Design beslag
Voorzien van:
- 10 mm blank voorgespannen floatglas
- rvs bovenspeun nr. 5002
- rvs doorlopende draaibuis nr. 5450
- Metaglas rvs vloerveer nr. 8620 met 90° ruststand
- rvs deurduwers Ø 16 x 650 mm
- rvs eindstop nr. 5005
Maximaal deurgewicht: 200 kg
Maximale deurbreedte: 1500 mm
Glasdikte: 10 mm, 12 mm, 5(2)5 en
6(2)6
 
             
             
                                     
                                     
                                     
                                     
                                     
                                     
                                     
                                     
                                     
                                     
                                     
                                     
                                     
                                     
                                     
                                     
                                     
                                     
                                    