Loading...
Totalglas puien en deuren Glazen deur met Metinox Design beslag

TPB

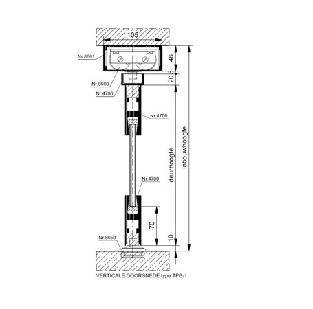
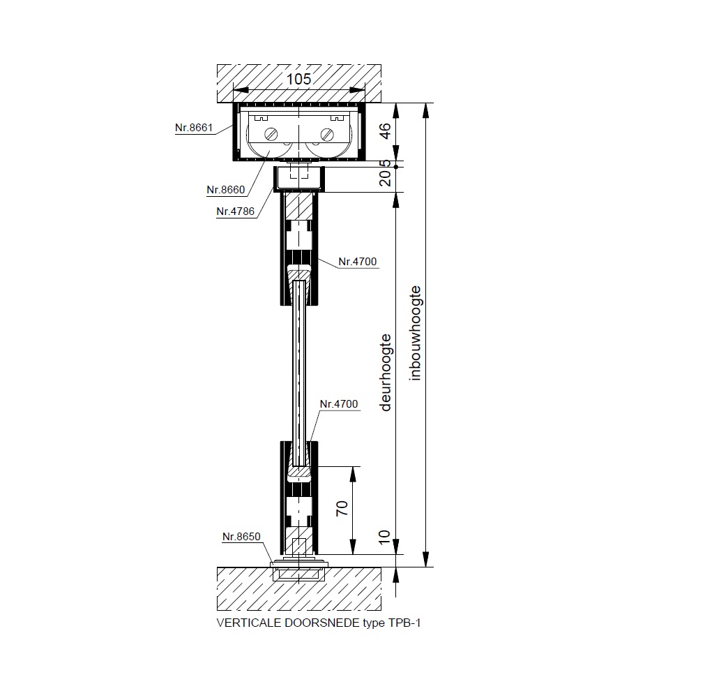
TOTAL GLAS hardglazen deur met ingebouwde bovendeursluiter en onder- en bovenprofiel

Voorzien van:

  • 10 mm blank voorgespannen floatglas
  • bovenprofiel nr. 8661/8662
  • ingebouwde bovendeursluiter nr. 8660
  • rvs bovenschoenen nr. 4410
  • onderplint nr. 4700 met inzetstuk nr. 4720
  • grondlager nr. 8650
  • rvs deurduwers Ø 19 x 650 mm


Maximaal deurgewicht: 120 kg
Maximale deurbreedte: 1200 mm
Glasdikte: 10 mm, 12 mm en 5(2)5
Overige glasdiktes: op aanvraag

Afbeeldingen zijn een voorbeeld van type TPB-1

Download voor alle informatie over dit product de technische documentatie, hierin vindt u onder andere: technische specificaties, samenstellingsoverzicht, tekeningen, aansluitdetails en onderdelen.

Heeft u na het inzien van de technische documentatie vragen en/of heeft u specifieke productwensen , neem dan contact op met Mview+. Wij helpen u graag verder.