Loading...
M-view balkonbeglazing M-view vouwende balkonbeglazing

MDC

Zelfdragende ophangconstructie

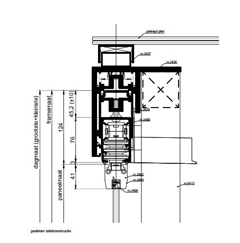
Gesloten balkontafel

De open tafelconstructie kan indien gewenst voorzien worden van een transparant of gematteerd gelaagde glasplaat. Hierdoor zal de meeste regen niet op het balkon komen en ontstaat er een comfortabele wintertuin. 

Heeft u na het inzien van de technische documentatie vragen en/of heeft u specifieke productwensen, neem dan contact op met ons op via info@mviewplus.nl. Wij helpen u graag verder.