Loading...
M-view balkonbeglazing M-view vouwende balkonbeglazing

MBR

M-view rechte balkonbeglazing

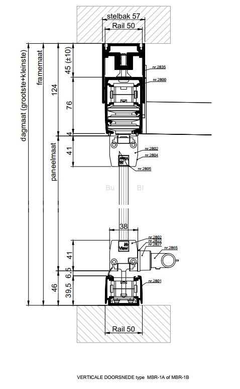
Onderstaande weergave is van type MBR-1A - MBR-1B

Voorzien van:

  • Blank voorgespannen floatglas met heat soak
  • Telescopisch stelprofiel nr. 2835
  • Bovenrail nr. 2800
  • Bovenlooproller
  • Samengesteld raamprofiel nr. 2802, nr 2804 en nr. 2805
  • rvs onder vergrendeling nr. 2822 en nr 2627
  • rvs bedieningsgreep T-model nr. 2865
  • Ondergeleidingsprofiel nr. 2801
  • Transparant kunststof aansluitprofiel

 

MBR-1A
Rechte vorm, plaatsing op borstwering, 1 zijde te openen,
MBR-1B
Rechte vorm, verdiepingshoog, enkelzijdige bediening,1 zijde te openen,
MBR-2A
Rechte vorm, plaatsing op borstwering, naar 2 zijden te openen
MBR-2B
Rechte vorm, verdiepingshoog, enkelzijdige bediening, naar 2 zijden te openen

Heeft u na het inzien van de technische documentatie vragen en/of heeft u specifieke productwensen, neem dan contact op met ons op via info@mviewplus.nl. Wij helpen u graag verder.