Loading...
Totalglas schuifloketten Totalglas elektrisch bediend

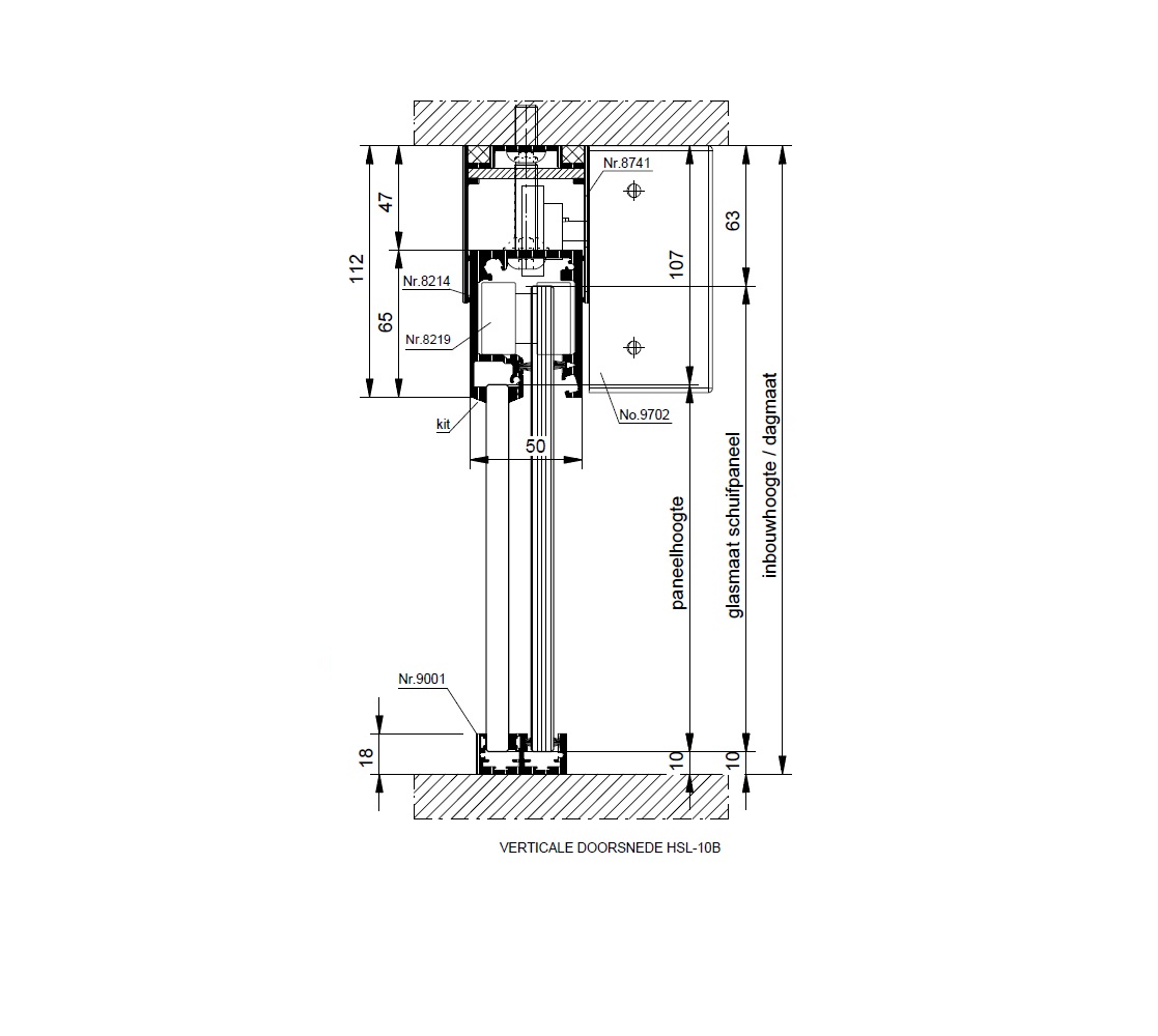
EHSL

Elektrisch horizontaal schuifloket

Voorzien van:

  • 8 mm blank voorgespannen floatglas
  • aluminium stelbak 8741
  • aluminium hangrail nr. 8214
  • kogelgelagerde looprol nr. 8219 met tandheugel nr. 9705
  • aluminium ondergeleidingsprofiel nr. 9001
  • aandrijfunit nr. 9702 met rvs afdekkap
  • voedingskabel met stekker 230V nr. 9703
  • schakelkast nr. 9715 met voeding en elektronische afslag
  • bedieningsknop nr. 9704

Afbeeldingen zijn een voorbeeld van type EHSL-10B

Download voor alle informatie over dit product de technische documentatie, hierin vindt u onder andere: technische specificaties, samenstellingsoverzicht, tekeningen, aansluitdetails en onderdelen.

Heeft u na het inzien van de technische documentatie vragen en/of heeft u specifieke productwensen , neem dan contact op met Mview+. Wij helpen u graag verder.